Ref # : GE3922
For Sale € 1,500,000.00
Villa
Qala, GOZOOverview
Located in the quaint and serene village of Qala, this beautifully designed villa enjoys open countryside views and distant sea views, offering a peaceful lifestyle in one of Gozo’s most desirable locations.
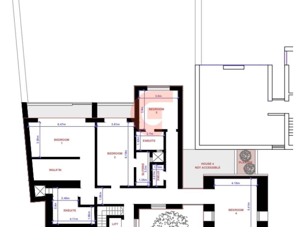
The property layout includes a spacious open-plan kitchen, dining, and living area, four bedrooms all featuring en-suite bathrooms, a main bathroom at ground floor level, a washroom, and multiple storage rooms, ensuring both comfort and practicality.
Outdoor areas include a large deck with a private swimming pool and several terraces that enjoy panoramic views of the surrounding countryside and sea. The villa is further complemented by a one-car garage.
The property is being offered in shell form and is scheduled for completion by the end of December 2026, allowing purchasers the opportunity to personalise the interior finishes to their own requirements. The property is offered freehold.
For further information, plans, or viewing arrangements, please contact Giovanni Estates.
Features
Base Information
Parking Information
General Amenities
Exterior Amenities
Landscape Amenities
Giovanni Real Estate
One of the successful real estate agency in the Maltese Islands offering property for sale and turnkey solutions in Malta and Gozo. A vast range of,Apartments, Penthouses Maisonettes, Terraced Houses, Traditional Farmhouses, Houses of character ,Bungalows, Villas, Commercial outlets, property investments and properties for sale are available in Malta and Gozo.
Check out our website, the best place to start your real estate search. You can also contact our real estate agent for a customized selection of the property types you are interested in, including professional advice and opinion.







