Ref # : GE2827
For Sale € 180,000.00
Apartment with Communal Indoor & Outdoor Pool
Xaghra (Gozo), GOZOOverview
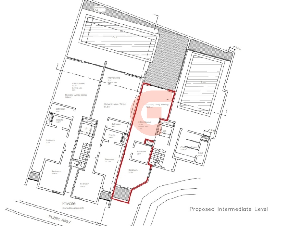
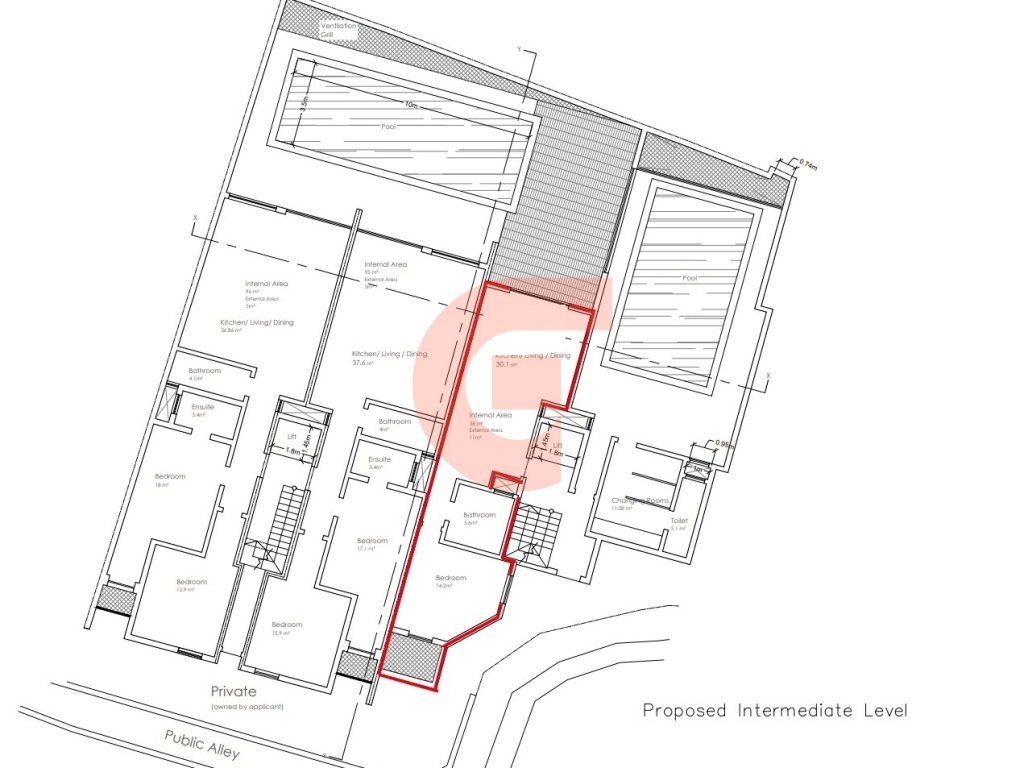
Situated in the heart of the very popular village of Xaghra. It is situated in a quiet rural location within walking distance of the main square. The project consists of twenty-four luxury apartments divided into three separate blocks and several garages on the basement level. There is a selection of one, two, and three-bedroom apartments and most of them enjoy open country views. The layouts of these apartments are professionally designed to offer space, quality, and above all comfort for the discerning client. This unique project comprises also two swimming pools, one outdoor with a deck area and another indoor heated pool. These units are being offered freehold and in shell form.
Common Parts include:
- Passenger lift for each block from the garage level
- Communal areas finished to high standards
- Plastered front and back facades in Silicato
- Front balcony railings
- Front double-glazed apertures
- Finished Outdoor Swimming Pool
- Finished Heated Indoor Pool
Common Parts €16,000
Features
Base Information
General Amenities
Accessibility Amenities
Exterior Amenities
Giovanni Real Estate
One of the successful real estate agency in the Maltese Islands offering property for sale and turnkey solutions in Malta and Gozo. A vast range of,Apartments, Penthouses Maisonettes, Terraced Houses, Traditional Farmhouses, Houses of character ,Bungalows, Villas, Commercial outlets, property investments and properties for sale are available in Malta and Gozo.
Check out our website, the best place to start your real estate search. You can also contact our real estate agent for a customized selection of the property types you are interested in, including professional advice and opinion.








