fbpx

Ref # : GE3706

For Sale € 310,000.00

Apartment

Ghajnsielem, GOZO
  • iScreen Shoter - 20250910131657473
  • Apt 4
  • iScreen Shoter - 20250910131626860
  • iScreen Shoter - 20250910131550698
  • iScreen Shoter - 20250910131642142
  • iScreen Shoter - 20250910131713366
  • iScreen Shoter - 20250910131657473
  • Apt 4
  • iScreen Shoter - 20250910131626860
  • iScreen Shoter - 20250910131550698
  • iScreen Shoter - 20250910131642142
  • iScreen Shoter - 20250910131713366
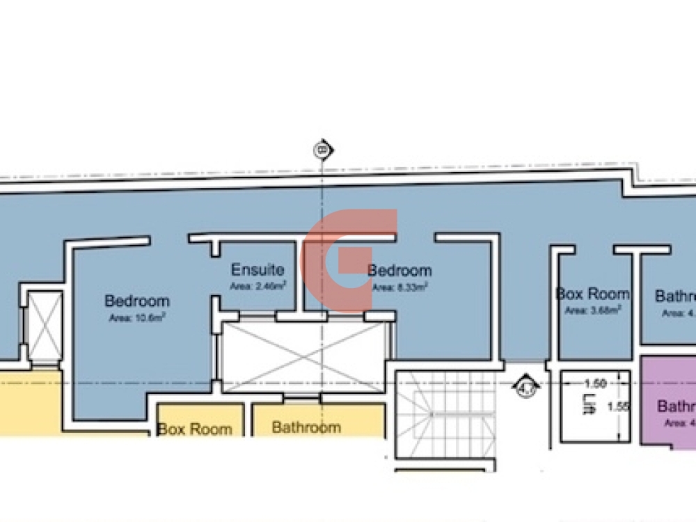
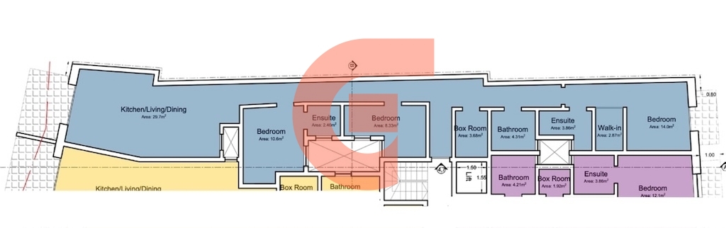
  • Square meter: 132.6 sqmt
  • Bedroom: 3
  • Bathroom: 4
  • Floors: 0
  • Category: Apartment

Overview

Situated in the tranquil village of Nadur, this project offers the perfect blend of natural beauty and modern living. Residents will enjoy panoramic views of the valley and San Blas beach, all within easy reach of Nadur’s iconic beaches namely San Blas and Daħlet Qorrot, cafés, and Nadur’s centre.

The development comprises a total of eleven residences, carefully designed for comfort and practicality. There are nine spacious apartments which comprise three bedrooms and two bathrooms, with selected layouts including box rooms and walk-in closets, ideal for families or those seeking extra flexibility.

Crowning the project are two premium penthouses, each offering two bedrooms, two bathrooms, and expansive terraces, having one of the penthouses featuring panoramic views across the valley and San Blas beach. Beneath the complex are seven convenient garages, providing secure and accessible parking.

Features

Base Information

Bed: 3
Bath: 4
Square meter: 132.60

Parking Information

Garage description: Optional

Building Information

Flooring: 2nd-Floor

General Amenities

Shell-Form

Exterior Amenities

Balcony

Interior Amenities

Lift/Elevator
       
Related properties
Related Properties
GE3607, Selction of 1,2,3 bedroom Apartment
For Sale € 182,000.00
Ghajnsielem, GOZO
GE3604, Nice Location
For Sale € 172,000.00
Ghajnsielem, GOZO
GE3655, Squarish Apartment
For Sale € 160,000.00
Ghajnsielem, GOZO
GE3657, Squarish Penthouse
For Sale € 285,000.00
Ghajnsielem, GOZO
GE3364, Finished Terraced House
For Sale € 860,000.00
Ghajnsielem, GOZO
GE3552, Duplex Communal pool furnished
For Sale € 485,000.00
Ghajnsielem, GOZO
GE3362, Large Apt 164sqm
For Sale € 315,000.00
Ghajnsielem, GOZO
GE2761, House with 2 tumoli of Land
For Sale
Ghajnsielem, GOZO
GE3433, Airspace with Permits
For Sale € 260,000.00
Ghajnsielem, GOZO
GE3751, Penthouse with Views and Communal Pool
For Sale € 315,000.00
Ghajnsielem, GOZO
 
 

Giovanni Real Estate

One of the successful real estate agency in the Maltese Islands offering property for sale and turnkey solutions in Malta and Gozo. A vast range of,Apartments, Penthouses Maisonettes, Terraced Houses, Traditional Farmhouses, Houses of character ,Bungalows, Villas, Commercial outlets, property investments and properties for sale are available in Malta and Gozo.

Check out our website, the best place to start your real estate search. You can also contact our real estate agent for a customized selection of the property types you are interested in, including professional advice and opinion.